Llevell

icono 4

Galería

PLANTAS DISPONIBLES

mapa 1

VER PLANTA

mapa 1

VER TERRAZA

mapa 1

PLANTA BAJA

mapa 1

PISO 1


M2 útiles: 695.91 m2
M2 rentables: 786.38 m2

mapa 2

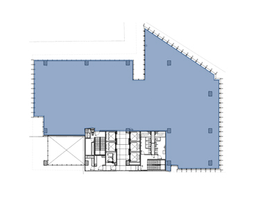
PISO 2


M2 útiles: 1,160.00 m2
M2 rentables: 1,318.18 m2

mapa 2

PISO 3


M2 útiles: 1,160.00 m2
M2 rentables: 1,318.18 m2

mapa 2

PISO 4


M2 útiles: 1,160.00 m2
M2 rentables: 1,318.18 m2

mapa 2

PISO 5


M2 útiles: 1,160.00 m2
M2 rentables: 1,318.18 m2

mapa 2

PISO 6


M2 útiles: 1,160.00 m2
M2 rentables: 1,318.18 m2

mapa 2

PISO 7


M2 útiles: 1,160.00 m2
M2 rentables: 1,318.18 m2

mapa 2

PISO 8


M2 útiles: 1,160.00 m2
M2 rentables: 1,318.18 m2

mapa 2

PISO 9


M2 útiles: 1,160.00 m2
M2 rentables: 1,318.18 m2

mapa 2

PISO 10


M2 útiles: 1,160.00 m2
M2 rentables: 1,318.18 m2

mapa 2

PISO 11


M2 útiles: 1,160.00 m2
M2 rentables: 1,318.18 m2

mapa 2

PISO 12

M2 útiles: 695.91 m2
M2 rentables: 786.38 m2
Terraza: 58.03 m2

mapa pb 1

PB Local 1

Local 1
Útil PB: 296.24 m2
Útil Tapanco: 153.28 m2
Útil Total: 447.52 m2

Rentable: 501.22 m2
Terraza: 400 m2

mapa pb2

PB Local 2

Local 2
Útil PB: 133.44 m2
Útil Tapanco: 96.24 m2
Útil Total: 229.68 m2

Rentable: 257.24 m2

Terraza: 125.98 m2